Two-story Malibu Home Destroyed in Wildfire

As a casualty of the Malibu Wildfires of 2018, a modest two-story home was lost, burned to the ground. The owner was determined to rebuild and contacted DC Foote for new drawings and permits. Within six months we prepared the drawings, and consulted with a broad range of engineers: structural engineer, civil engineer, landscape architect, energy engineer, mechanical, electrical and plumbing engineers.

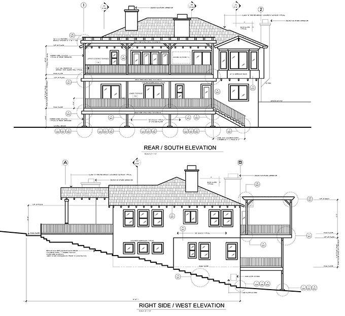
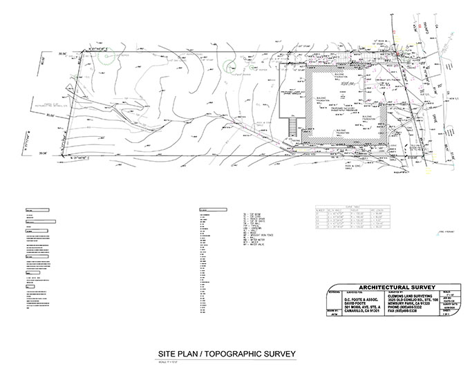
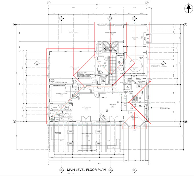
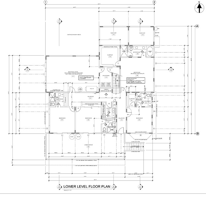
The new home is 4,779 sq. ft., 5 bedroom, 5.5 bathroom built on grade beams and 40 foot deep concrete caissons (see drawings below). It was designed with Smart Home features in mind. Use your phone to change the lighting, security systems, music, T.V.'s, temperature, etc. for a home that can almost run on its own (the equipment "Racks" are located on the lower level Mechanical Room). With designs done, it took six monhs to obtain planning and building permits from the County of Los Angeles.


(CLICK/TAP DRAWINGS TO DOWNLOAD PDF)